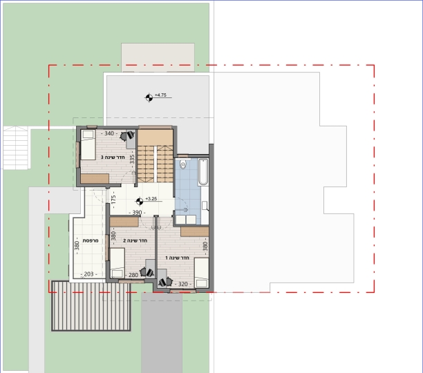
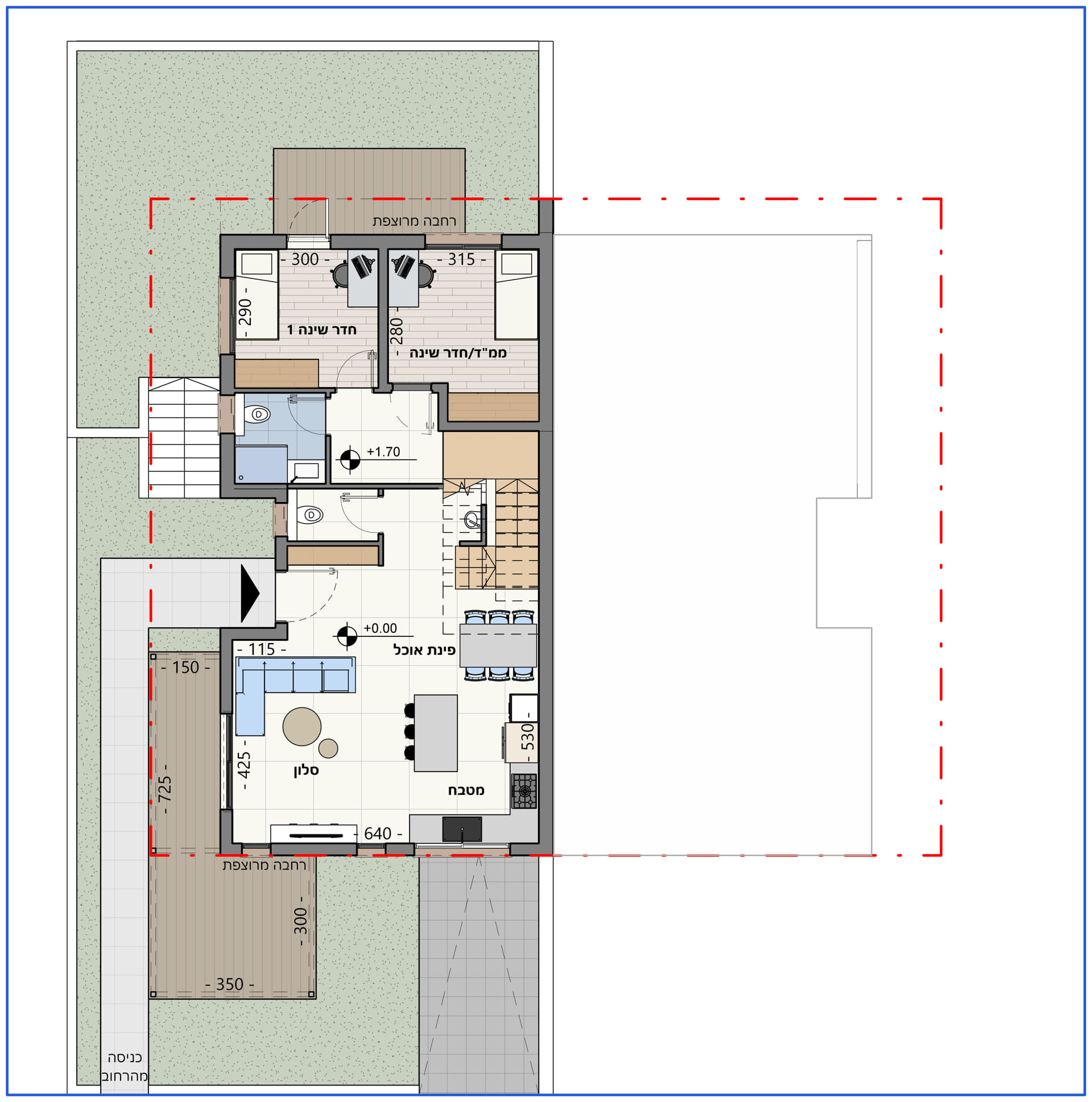
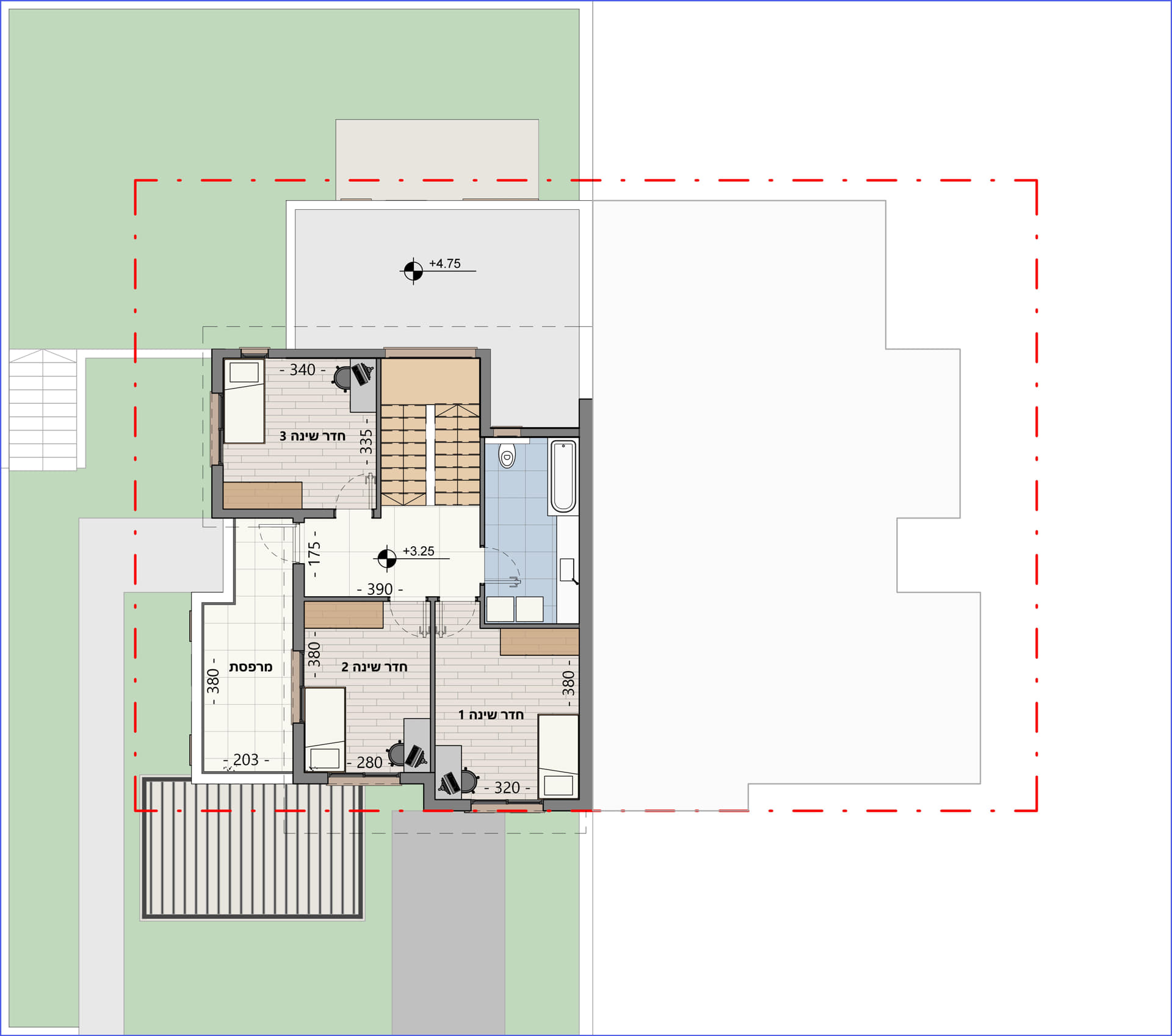
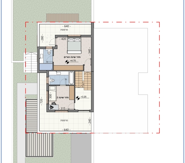
כרמיאל - מנהלת המגורים של צה"ל
|
כרמיאל - מנהלת המגורים של צה"ל
|
||
|
לקוח |
: |
מנהלת המגורים של צה"ל
|
|
אתר |
: |
כרמיאל
|
|
צוות התכנון |
: |
אדריכלות: מיטל טורקו, אסיל אבוריש, לירון בילסקי
|
|
שטח המגרש |
: |
20.5 ד'
|
|
תיאור הפרויקט |
: |
שכונת מגורים
|
|
סטטוס |
: |
בשיווק |
